Instagram Facebook Linkedin Youtube WhatsApp

Find Your Dream Property in Your Preferred City

Park royale

60,000

Property Description

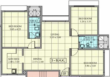
Park Royal Pimple Saudagar Pune is a ready-to-move residential project offering 3 BHK flats in the prime Pimpri Chinchwad area.

Connectivity:
1.Close to Wakad Road and Pimple Saudagar main road for easy local movement.
2.Nearby bus stops with PMPML services towards Hinjewadi and Pune city.
3.Proximity to Rahatani and Pimple Nilakh for smooth commuting.
4.Royal Heritage Mall.
5.SNBP International School vicinity.

Property Details

  • Price: 60000 + Tax
  • Property carpet: 1300 sq.ft
  • maintenance: 0
  • Year Built: 1 to 5 year
  • furniture: fully furnished
  • parking: covered
  • per floor flat: 4
  • Property Type: 3 bhk
  • deposit: 120000
  • connectivity: Hotel Govind Garden

Property Features

  • Swimming Pool
  • Lift
  • Kids Club
  • Rain Water Harvesting
  • Waste Disposal
  • Security
  • Power Back Up
  • Fire Fighting Equipment
  • Flower Gardens
  • Gymnasium

Property Floor Plans

Layout