Instagram Facebook Linkedin Youtube WhatsApp

Find Your Dream Property in Your Preferred City

Millennium acropolis

27,000

Property Description

Millennium Acropolis by Millennium Developers in Wakad is a residential project located in the prime and fast-developing area of Wakad,Pune, offering well-connected living in a sought-after western suburb.

Connectivity:
1.Excellent access to Mumbai-Bangalore Highway (NH-48) and Mumbai-Pune Bypass Road.
2.Near major roads like Wakad Road, Dange Chowk, and New Wakad-Hinjewadi Link Road.
3.Nearby locations include D-Mart supermarket (around 2 km).
4.Close to shopping areas like Westend Mall, Xion Mall.
5.Proximity to key spots like Akshara School, Ginger Hotel, and surrounding commercial areas.

Property Details

  • Price: 27000 + Tax
  • Property carpet: 561 sq.ft
  • maintenance: 0
  • Year Built: 1 to 5 year
  • furniture: semi furnished
  • parking: covered
  • per floor flat: 6
  • Property Type: 2 bhk
  • deposit: 50000
  • connectivity: Xion Mall

Property Features

  • Kids Club
  • Rain Water Harvesting
  • Gymnasium
  • Rain Water Harvesting
  • Security
  • Power Back Up

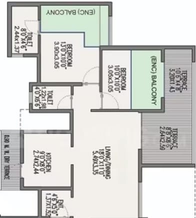
Property Floor Plans

layout