Instagram Facebook Linkedin Youtube WhatsApp

Find Your Dream Property in Your Preferred City

19 grand west

30,000

Property Description

19 Grand West is a residential project in Thergaon, Pune, developed by Shivam Development Ventures LLP and Ghanwat Group. It offers 2 and 3 BHK apartments across multiple towers, designed for modern living with spacious layouts.

Connectivity:
1.Near Dange Chowk, a key junction for local commuting.
2.Well-linked to Wakad and Tathawade via arterial roads.
3.Close to railway stations like Chinchwad and Akurdi.
4.Nearby bus stops for local and regional connectivity.

Property Details

  • Price: 30000 + Tax
  • Property carpet: 774 sq.ft
  • maintenance: 0
  • Year Built: 1 to 5 year
  • furniture: semi furnished
  • parking: covered
  • per floor flat: 6
  • Property Type: 2 bhk
  • deposit: 60000
  • connectivity: Near bRT Bus stop

Property Features

  • Swimming Pool
  • Community Hall
  • 24X7 Water Supply
  • Skating Rink
  • Lift(s)
  • Full Power Backup
  • Badminton Court
  • Fire Fighting System
  • Vaastu Compliant
  • Closed Car Parking

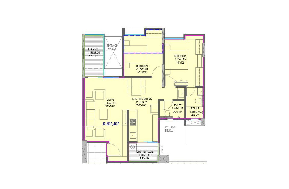
Property Floor Plans

Layout