Instagram Facebook Linkedin Youtube WhatsApp

Find Your Dream Property in Your Preferred City

Unique k town

25,000

Property Description

Unique K Town is an upcoming residential development by Unique Spaces in Kiwale, Pune.it emphasizes perfect ventilation, lively light, utmost privacy, and smart space, providing stylish and comfortable homes in a serene yet accessible location.

Connectivity:
1.100 meters from Mumbai-Bangalore Highway for quick access to Pune and Mumbai.
2.5 km from Ravet Railway Station for commuter rail links to Pune city.
3.2 km from Mukai Chowk for local traffic ease and nearby entry points.
4.D-Mart supermarket: 1.5 km away in Ravet.
5.Local markets and shops: Within 1 km at Kiwale chowk.

Property Details

  • Price: 25000 + Tax
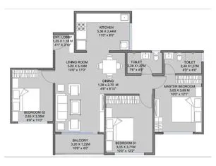
  • Property carpet: 948 sq.ft
  • maintenance: 0
  • Year Built: 1 to 5 year
  • furniture: semi furnished
  • parking: covered
  • per floor flat: 6
  • Property Type: 2.5 bhk
  • deposit: 50000
  • connectivity: City One Mall

Property Features

  • Club House
  • Kids Play Area
  • Kids Pool
  • Badminton Court
  • Indoor Gym
  • Basketball Court
  • Kids Pool

Property Floor Plans

Layout