Instagram Facebook Linkedin Youtube WhatsApp

Find Your Dream Property in Your Preferred City

The royal mirage

23,000

Property Description

The Royal Mirage is a residential project in Wakad, Pune, offering 1, 2, and 3 BHK apartments.The flat is well-maintained, thoughtfully designed, and ready to move in. Ideal for working professionals or small families seeking a comfortable and convenient living space.

Connectivity:
1.Close to Wakad-Hinjewadi Bridge for seamless travel.
2.Access to Aundh-Ravet BRTS Road.
3.near xion mall
4.Short drive to shopping centres and daily essentials
5.Near Dange Chowk Road and Datta Mandir Road.

Property Details

  • Price: 23000 + Tax
  • Property carpet: 750 sq.ft
  • maintenance: 0
  • Year Built: 1 to 5 year
  • furniture: semi furnished
  • parking: covered
  • per floor flat: 8
  • Property Type: 1 bhk
  • deposit: 50000
  • connectivity: Near euro school

Property Features

  • Swimming Pool
  • gymnasium
  • Club House
  • childrens play area
  • Basketball Court
  • jogging track

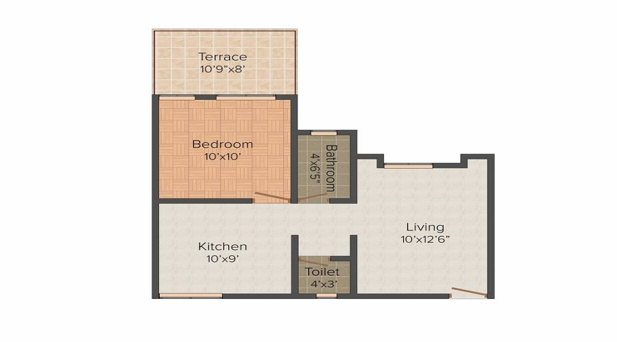
Property Floor Plans

layout